BHARTIYA NIKOO 7 GARDEN ESTATE FLOOR PLAN

Bhartiya Garden Estate Nikoo 7 offers thoughtfully designed homes with a wide selection of floor plans to suit every lifestyle. The layouts are crafted with modern architecture, spacious interiors, and vastu-compliant design, including North East facing units for those seeking harmony and positive energy.

Floor Plan Sizes

  • Studio Apartments: 480 – 540 sq.ft (44.6 – 50.1 sq.m)
  • 1 BHK Apartments: 750 – 800 sq.ft (69.6 – 74.3 sq.m)
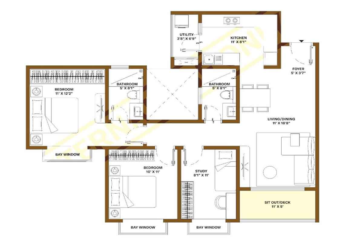
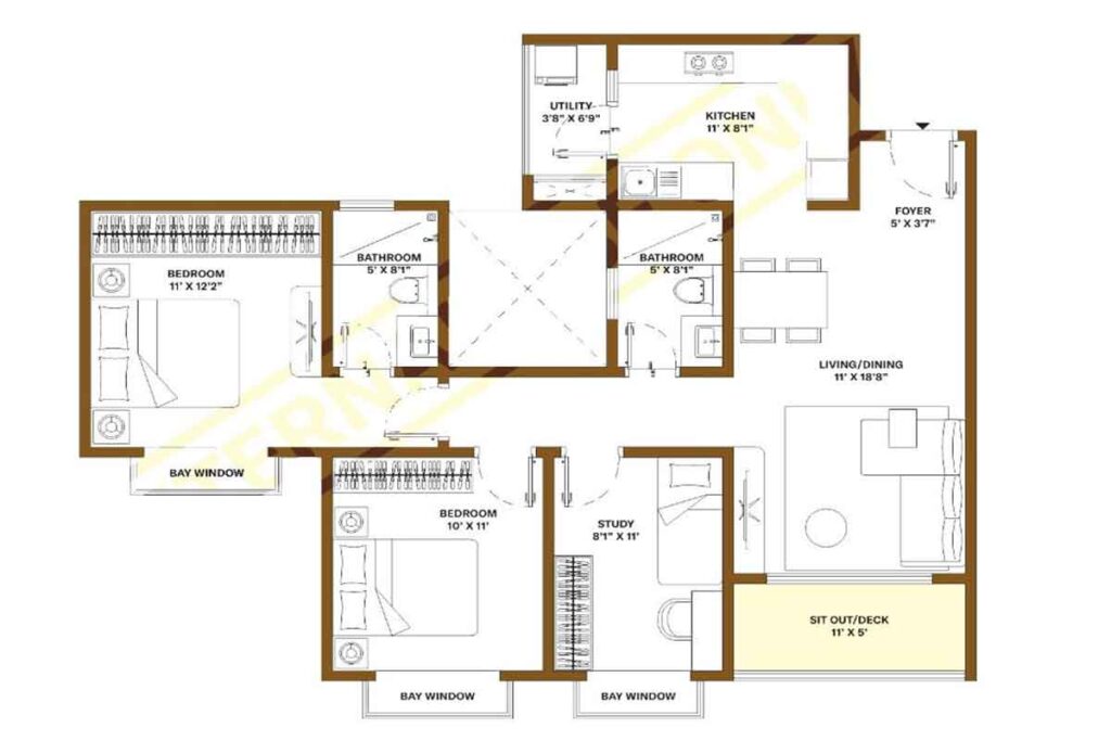
  • 2 BHK Apartments: 1,100 – 1,200 sq.ft (102.1 – 111.4 sq.m)
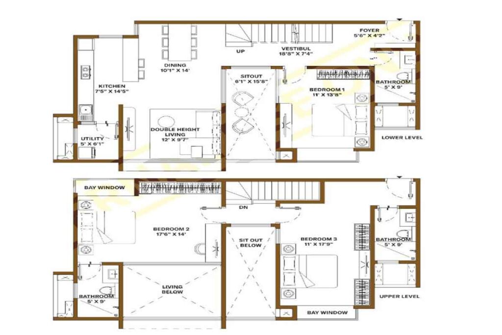
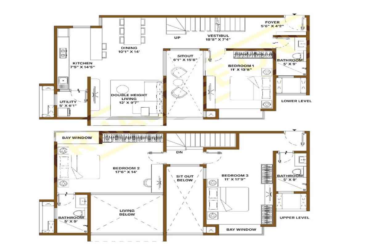
  • 3 BHK Apartments: 1,600 – 1,800 sq.ft (148.6 – 167.2 sq.m)
  • 4 BHK Residences: 2,500 – 2,600 sq.ft (232.2 – 241.5 sq.m)

Design & Layout Highlights

  • Spacious bedrooms, elegant living and dining areas, and modern kitchens
  • Private gardens, open balconies, and wide windows for natural light
  • Vastu-oriented North East facing flats and apartments
  • Premium rowhouses and villas available in select layouts
  • Smart use of space to balance comfort, style, and functionality

Every floor plan is designed to provide a blend of elegance and practicality, making Bhartiya Garden Estate Nikoo 7 an ideal choice for both families and investors. Whether you are looking for a cozy studio, a stylish apartment, or a premium villa, the project has a home that perfectly matches your lifestyle needs.

Bhartiya City Nikoo Homes Floor Plans